Every day, we are online.

Every minute, we are by your side.

sales@richpeace.com

Automatic Glue Rolling Machine

    RP-AG

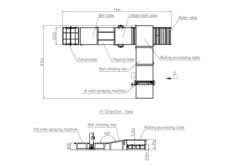
Gluing in between bed gauze and foam sponge, padding layer and fabric.
Product Video
Product Introduction

1. Gluing in between bed gauze and foam sponge, padding layer and fabric.

2. Servo control system, can be connected to mattress production line.

3. Hot roller adapts to the height automatically, rubber roller with advanced electromagnetic induction heating, which is safe, reliable, stable and durable. The temperature accuracy can reach ± 1 ℃. 


Glue Type

Water glue / PUR  Hot Melt

Feeding Thickness

10-350mm

Rolling Speed

30m/min

Feeding Width

Max. 2100mm

Heating Roller Power

24Kw

Temperature

0-200℃

Power Supply

380V 50/60hz

Total Power

30Kw

Machine Size

4000×2200×2700mm(LWH)


Product Parameters
Model

RP-AG